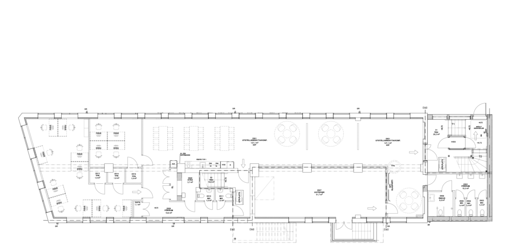
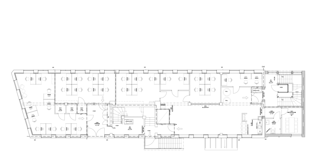
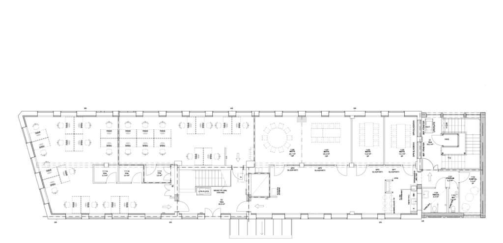
Vi arbetar med att minimera miljöbelastningen i våra lokaler och samtidigt skapa en attraktiv och kreativ miljö att arbeta i. Exempelvis kommer vi att eftersträva en låg energianvändning, välja miljövänliga material och möblera upp lokalerna med återbrukade möbler. Solceller installeras på delar av tak och fasad och vi ska skapa förutsättningar för maximal användning av den egenproducerade elen genom ett batterilager. Rumsindelning och planering fokuserar på effektivt utnyttjande och samutnyttjande av ytor.
Vi vill samla hyresgäster som på något sätt arbetar med energifrågor och om du är en sådan och intresserad av att bli en hyresgäst hos oss är du varmt välkommen att höra av dig.

)
)
)